Small double, short let (ideal for students)

  • Ad ref# 18089529
  • 77 days old
Area:
Combe Down
Postcode:
BA2
Available:
Now
Min term:
None
Max term:
6 months
Short lets considered:
Yes

Single room:
£550pcm

Hello! As I am moving out in the new year, I am looking for a tenant to replace me for January-July period (flexible start).
This is a house targeted at students due to its proximity with Bath University. Willing to consider professionals as there is one other professional living in the house. The other two boys are doctoral students.

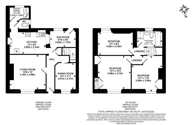
The small double room is downstairs, titled "Dining Room" on the floorplan. The pictures speak for themselves, you will have:
- Shared kitchen with personal cupboard space and shared plates/utensils if you need
- Washer/Dryer
- Shared fridge freezer spaces
- Two bathrooms, the main one having a shower and bath
- Garden, with shed for storage (for bikes for example)

I encourage viewing, and you will have to be available for the landlord to do a right to rent check before signing the contract.

Good luck finding your next place to live!

zoom
Small Double available to rent £550 pcm

Contact the advertiser

Sorry, the room is no longer available

Read our safety tips.


Location info

  • Combe Down
  • BA2

Extra costs

Deposit
£0.00
Bills included?
No

Amenities

Furnishings
Furnished
Parking
Yes
Garage
No
Garden/terrace
Yes
Balcony/Patio
No
Disabled access
No
Living room
shared
Broadband included
Yes

Current Household

# housemates
4
Total # rooms
4
Ages
25 to 30
Smoker?
No
Any pets?
No
Language
English
Occupation
Student
University
University of Bath
Gender
1 Female, 3 Males

New Housemate preferences

Couples OK?
No
Smoking OK?
No
Pets OK?
No
Occupation
Don't mind  
References?
No
Max age
30
Gender
Males or females

View on map

To EMAIL or PHONE the advertiser, please scroll up this page - there is a box entitled "Contact the advertiser". You can call or email from there.

Help topics

Report this ad

We have staff moderating our ads 7 days per week, to keep quality high. Please help us in our job and let us know if there is any problem with this ad, e.g.:

  • The photos are not of the room advertised
  • The description is misleading
  • The ad is generic rather than for a specific available room
  • The advertiser is not a former flatmate